Казалось бы мы уже опубликовали на сайте достаточно много проектов беседок разных форм и размеров под любые запросы, но как показывает практика обращений, под конкретный участок и у отдельно взятой семьи всегда найдутся свои пожелания, под ряд своих условий.
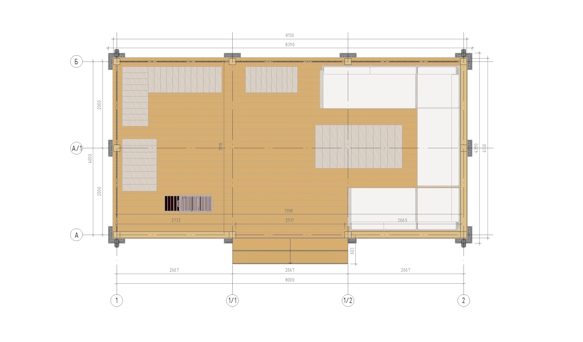
Так было и в этом случае, — заказчики выразили желание построить на своем участке симбиоз беседки с зоной отдыха и летней кухни, размером 4х8м. Так как на примете имелся понравившийся комплект садовой мебели, а так же надо было разместить рабочие поверхности, мангал и газовый гриль.
Беседку планируется разместить в углу участка, в связи с чем было высказано пожелание закрыть беседку с двух сторон, — во первых для защиты от ветра, а во вторых несколько прикрыться от взглядов с соседнего участка. По внешнему виду остановились на достаточно «классическом варианте» с двускатной крышей, в качестве украшения и дополнительных ребер жесткости будут использоваться подкосы из доски.

Немного необычным выглядит расположение мангала не у стены, а лицом на участок, но по словам владельцев им надоело смотреть в стену при готовке. Так же такое расположение (только не забудьте по мангал подложить лист железа в качестве защиты от выпадающих углей) позволяет всем разместиться вокруг мангала ранней весной или поздней осенью когда хочется погреться. Хотя для этих целей лучше использовать уличный газовый обогреватель «грибок».

Из интересных идей в качестве фундамента планируется использовать кросс-блоки, но не забывайте что под них все равно надо устроить подушку против морозного пучения грунта. А также для ускорения монтажа использовать металлические пластины для соединения стоек каркаса.

Также мы хотели бы напомнить, что не смотря на кажущуюся простоту беседки, все равно требуют достаточно больших финансовых вложений. Так что в этом плане не стоит верить рассказам соседа как он построил свою беседку 5х7 своими руками за выходные, вложив 50,000р. дескать «-да чего там немного бруса и крыша»… Так что перед началом строительства, призываем тщательно просчитать возможные вложения, особенно в случае привлечения наемной бригады.

Оставьте первый комментарий